Добро пожаловать на http://vipplan.ru

Випплан Ессентуки - это тысячи проектов домов в нашем каталоге!

Вы всегда сможете найти для себя проект дома вашей мечты! Даже если этого не случилось, мы готовы в любую минуту предложить проект индивидуального дома.

Забыли пароль?
Вы еще не регистрировались?

Перейдите по ссылке ниже на страницу регистрации.

Регистрация...

Внимание!!!

В проектную документацию могут быть внесены изменения любой сложности, в соответствии в Вашими пожеланиями!

Полезные статьи

Вентиляция в подвале дома

Без подвала или цокольного этажа в частном доме, в наше время, не обойтись. Это полезное для дома помещение должно быть хорошо вентилируемым. В доме с подвалом должна быть хорошая циркуляция воздуха, для сохранения находящихся в нем продуктов. Отсутствие вентиляции  может привести к образованию плесени и сырости не только в подвале, но и во всем доме....

Укладка тротуарной плитки

При укладке тротуарной плитки, необходимо соблюдать технологию, во избежание, разрушения и расшатывания покрытия. Первый этап - подготовка основания.  ...

Проекты домов и коттеджей > Каталог проектов домов > Проект дома с мансардой Vg1183

Проект дома с мансардой Vg1183

Проект дома с мансардой
Зарегистрируйтесь

Проект № Vg1183


Техническое описание
Общая площадь: 194.04 м2
Жилая площадь: 101.03 м2
Высота здания: 8.54 м
Размеры дома: 10.04м×13.04м
Кол-во комнат: 5
Цокольный этаж: нет
Гараж: нет
Мансарда: есть

Kонструкция
Фундамент: Ленточный
Перекрытия: Монолитные перекрытия
Материал стен: Опалубка

Архитектурный раздел
Конструктивный раздел
АР+КР - 60 000 (Со скидкой 20%)
Проект индивидуального одноэтажного жилого дома с размерами 10,04 x 13,04 м. Наружная отделка здания – штукатурка. Цоколь – клинкерная плитка. Фундамент – ленточный монолитный ж/б Наружные стены запроектированы из: несъемной опалубки. Внутренние стены и перегородки: из несъемной опалубки Перекрытие межэтажное – монолитное ж/б. Материал кровли – битумная черепица Окна - металлопластиковые, выполненные по индивидуальному заказу.
Генплан застройки участка / Паспорт проекта 7000 руб / 10000 руб
Инженерный раздел (полный) 97000 руб
Смета на строительство 48500 руб
Теплотехнический расчет материалов стен Бесплатно
Стоимость проекта со незначительнми изменениями 70150 руб
Стоимость проекта со средними изменениями* 84700 руб
Стоимость проекта со значительными изменениями** 88600 руб

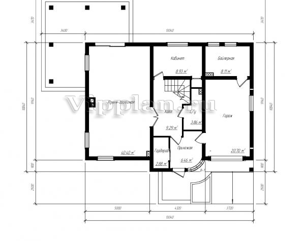
План первого этажа


Прихожая — 6,46 м2
Гардероб — 2,88 м2
Холл — 9,29 м2
С/у — 3,86 м2
Кабинет — 8,93 м2
Бойленая — 8,11 м2
Гараж — 20,70 м2
Кухня — 40,40 м2

План мансардного этажа


Холл — 15,43 м2
Гардероб — 4,75 м2
С/у — 14,13 м2
Спальня — 13,05 м2
Гардероб — 6,03 м2
Спальня — 19,84 м2
Спальня — 18,81 м2
Балкон — 4,60 м2
Проект дома с мансардой Проект дома с мансардой Проект дома с мансардой Проект дома с мансардой
Внесение изменений и привязка к участку строительства

В любой из проектов от компании VIPplan - Ессентуки по вашему желанию могут быть внесены изменения в материалы стен, материалы наружной отделки дома, а также будет произведена адаптация проекта под конкретный регион строительства (с учетом грунтов региона, геологических особенностей вашего участка и местных климатических условий) - БЕСПЛАТНО !!! (кроме проектов со скидкой и проектов наших партнеров).

Любой из проектов, размещенных на сайте essentuki.vipplan.ru мы можем выполнить из требуемых вам строительных материалов: ячеистый бетон (газобетон, пеноблок), керамоблок, кирпич, шлакоблок, бетонный блок, дерево (брус, клееный брус), каркасная технология (деревянный каркас, металлокаркас (ЛСТК)).

Фасад дома и его наружную отделку так же возможно выполнить с применением различных облицовочных материалов: структурной штукатурки, (с утеплителем и без), сайдингом (пластиковый или металлосайдинг), фиброплитами, кирпича.

 
6 Избранные
проекты

Доставка проектов по России: Москва (Московская область), Санкт-Петербург (Ленинградская область), Краснодар, Ростов-на-Дону, Ставрополь, Сочи, Волгоград, Новосибирск, Белгород, Брянск, Воронеж, Саратов, Хабаровск, Астрахань, Нальчик, Владикавказ, Екатеринбург, Тюмень, Самара, Нижний Новгород, Казань, Пермь, Уфа, Челябинск, Красноярск, Ханты-Мансийск, Иркутск, Курган, Оренбург, Омск, Томск, Барнаул, Новокузнецк, Кемерово, Абакан, Чита, Якутск, Южно-Сахалинск, Петропавловск-Камчатский и страны ближнего зарубежья: Белоруссия, Украина, Казахстан