Добро пожаловать на http://vipplan.ru

Випплан Ессентуки - это тысячи проектов домов в нашем каталоге!

Вы всегда сможете найти для себя проект дома вашей мечты! Даже если этого не случилось, мы готовы в любую минуту предложить проект индивидуального дома.

Забыли пароль?
Вы еще не регистрировались?

Перейдите по ссылке ниже на страницу регистрации.

Регистрация...

Внимание!!!

В проектную документацию могут быть внесены изменения любой сложности, в соответствии в Вашими пожеланиями!

Полезные статьи

Виды бассейнов

В наше время, строительство бассейна на территории своего участка, не такая уж и роскошь. Выбор видов и стилей бассейна, на сегодняшний день, очень большой....

Выбор проекта дома в Ессентуках. Типовой или индивидуальный?

Строительство дома начинается с выбора проекта. От него будет зависит удобство, комфорт и функциональность Вашего будущего дома. Какой проект выбрать? В каталоге проектов домов VIPplan Ессентуки предоставлен огромный выбор проектов на любой вкус и кошелек. В итоге выбор сводится к покупке типового проекта дома или заказа индивидуального проекта. Для упращения задачи, расскажем о каждом варианте по отдельности...

Проекты домов и коттеджей > Каталог проектов домов > Одноэтажный дом с эркером, террасой и навесом Vg1195

Одноэтажный дом с эркером, террасой и навесом Vg1195

Одноэтажный дом с эркером, террасой и навесом
Зарегистрируйтесь

Проект № Vg1195


Техническое описание
Общая площадь: 144.8 м2
Жилая площадь: 68.85 м2
Высота здания: 7.05 м
Размеры дома: 11.84м×14.94м
Кол-во комнат: 3
Цокольный этаж: нет
Гараж: нет
Мансарда: нет

Kонструкция
Фундамент: Стена в грунте
Перекрытия: Деревянные
Материал стен: Кирпич

Архитектурный раздел
Конструктивный раздел
АР+КР - 52 000 (Со скидкой 20%)
Проект индивидуального одноэтажного жилого дома с размерами 11,84 x 14,94 м. Наружная отделка здания – облицовочный кирпич Цоколь – клинкерная плитка. Фундамент – стена в грунте (щелевой) Наружные стены запроектированы из: забутовочного кирпича, утеплителя и облицовочного кирпича. Внутренние стены и перегородки - из забутовочного кирпича. Перемычки - монолитные и сварные из профиля проката. Перекрытие межэтажное – по деревянным балкам с использованием тепло-шумоизоляционных материалов. Пол этажа – пол по грунту. Крыша - многоскатная. Материал кровли – металлочерепица. Окна - металлопластиковые, выполненные по индивидуальному заказу.
Генплан застройки участка / Паспорт проекта 7000 руб / 10000 руб
Инженерный раздел (полный) 72500 руб
Смета на строительство 36250 руб
Теплотехнический расчет материалов стен Бесплатно
Стоимость проекта со незначительнми изменениями 61350 руб
Стоимость проекта со средними изменениями* 72300 руб
Стоимость проекта со значительными изменениями** 75200 руб

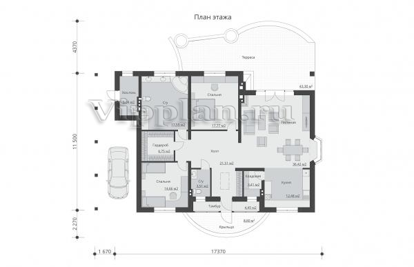
План первого этажа


Тамбур — 4,45 кв м
Кладовая — 3,41 кв м
Холл — 21,51 кв м
С/у — 3,51 кв м
Кухня — 12,48 кв м
Гостиная — 36,42 кв м
Спальня — 17,77 кв м
С/у — 17,55 кв м
Помещение — 5,00 кв м
Гардероб — 6,75 кв м
Спальня — 14,66 кв м
Одноэтажный дом с эркером, террасой и навесом Одноэтажный дом с эркером, террасой и навесом Одноэтажный дом с эркером, террасой и навесом Одноэтажный дом с эркером, террасой и навесом

Модификации проектов

Внесение изменений и привязка к участку строительства

В любой из проектов от компании VIPplan - Ессентуки по вашему желанию могут быть внесены изменения в материалы стен, материалы наружной отделки дома, а также будет произведена адаптация проекта под конкретный регион строительства (с учетом грунтов региона, геологических особенностей вашего участка и местных климатических условий) - БЕСПЛАТНО !!! (кроме проектов со скидкой и проектов наших партнеров).

Любой из проектов, размещенных на сайте essentuki.vipplan.ru мы можем выполнить из требуемых вам строительных материалов: ячеистый бетон (газобетон, пеноблок), керамоблок, кирпич, шлакоблок, бетонный блок, дерево (брус, клееный брус), каркасная технология (деревянный каркас, металлокаркас (ЛСТК)).

Фасад дома и его наружную отделку так же возможно выполнить с применением различных облицовочных материалов: структурной штукатурки, (с утеплителем и без), сайдингом (пластиковый или металлосайдинг), фиброплитами, кирпича.

 
6 Избранные
проекты

Доставка проектов по России: Москва (Московская область), Санкт-Петербург (Ленинградская область), Краснодар, Ростов-на-Дону, Ставрополь, Сочи, Волгоград, Новосибирск, Белгород, Брянск, Воронеж, Саратов, Хабаровск, Астрахань, Нальчик, Владикавказ, Екатеринбург, Тюмень, Самара, Нижний Новгород, Казань, Пермь, Уфа, Челябинск, Красноярск, Ханты-Мансийск, Иркутск, Курган, Оренбург, Омск, Томск, Барнаул, Новокузнецк, Кемерово, Абакан, Чита, Якутск, Южно-Сахалинск, Петропавловск-Камчатский и страны ближнего зарубежья: Белоруссия, Украина, Казахстан