Добро пожаловать на http://vipplan.ru

Випплан Ессентуки - это тысячи проектов домов в нашем каталоге!

Вы всегда сможете найти для себя проект дома вашей мечты! Даже если этого не случилось, мы готовы в любую минуту предложить проект индивидуального дома.

Забыли пароль?
Вы еще не регистрировались?

Перейдите по ссылке ниже на страницу регистрации.

Регистрация...

Внимание!!!

В проектную документацию могут быть внесены изменения любой сложности, в соответствии в Вашими пожеланиями!

Полезные статьи

Монолитный коттедж с несъемной опалубкой

Перед тем, как вы задумаетесь о строительстве своего коттеджа, необходимо выбрать, сами вы будете руководить строительством, нанимать разных рабочих, или будете обращаться в строительную фирму, и заключать с ними договор. Но даже к этому вопросу нужно подходить правильно, обдумав все плюсы и минусы выбора....

Перекрытия в доме

Перекрытия – одно из важнейших составляющих строящегося дома. Это горизонтальная внутренняя защитная конструкция, разделяющая по уровню смежные помещения дома. По назначению выделяют подвальные, межэтажные и чердачные перекрытия. При проектировании домов и зданий различного назначения, требования к межэтажным перекрытиям определяются их местоположением и функциями разделяемых помещений: надподвальные, межэтажные, чердачные и т.д....

Проекты домов и коттеджей > Каталог проектов домов > Проект просторного двухэтажного жилого дома с подвалом и чердаком Vg2410

Проект просторного двухэтажного жилого дома с подвалом и чердаком Vg2410

Проект просторного двухэтажного жилого дома с подвалом и чердаком
Зарегистрируйтесь

Проект № Vg2410


Техническое описание
Общая площадь: 366.21 м2
Жилая площадь: 126.43 м2
Высота здания: 9.7 м
Размеры дома: 13.8м×13.2м
Кол-во комнат: 6
Цокольный этаж: есть
Гараж: нет
Мансарда: нет

Kонструкция
Фундамент: монолитная ж/б плита под всей площадью дома
Перекрытия: монолитная ж/б плита, деревянные балки
Материал стен: Газобетон

Архитектурный раздел
Конструктивный раздел
АР+КР - 92 000 (Со скидкой 20%)
Модель проекта двухэтажного жилого дома с мансардой и подвалом с размерами здания 13,80 x 13,20 м. Наружная отделка здания – штукатурка, штукатурка с рустом, деревянные панели. Фундамент – монолитная ж/б плита под всей площадью дома. Наружные стены – газобетонные блоки с утеплением минеральной ватой и отделкой. Внутренние стены - газобетонные блоки. Перегородки - газобетонные блоки, забутовочный кирпич, каркасные с ГКЛ. Пол подвала - пол по монолитной плите, пол 1 этажа - монолитная ж/б плита, межэтажное и чердачное перекрытия - деревянные балки. Крыша многоскатная. Кровля – металлочерепица, рулонне мембранное покрытие. Окна — металлопластиковые.
Генплан застройки участка / Паспорт проекта 7000 руб / 10000 руб
Инженерный раздел (полный) 183000 руб
Смета на строительство 91500 руб
Теплотехнический расчет материалов стен Бесплатно
Стоимость проекта со незначительнми изменениями 105850 руб
Стоимость проекта со средними изменениями* 133300 руб
Стоимость проекта со значительными изменениями** 140600 руб

План цокольного этажа


Помещение — 95,93 м2
Цоколь

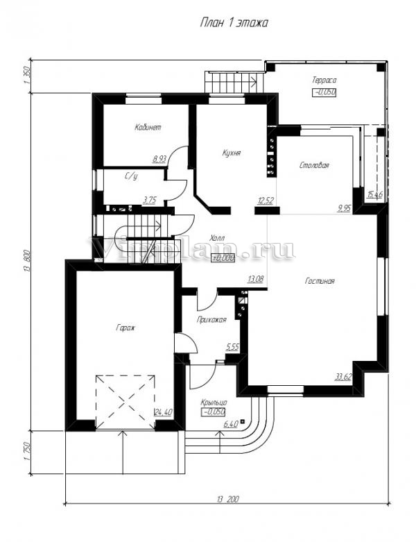
План первого этажа


Прихожая — 5,55 м2
Холл — 13,08 м2
С/у — 3,75 м2
Кабинет — 8,93 м2
Кухня — 12,52 м2
Столовая — 9,95 м2
Гостиная — 33,62 м2
Гараж — 24,4 м2

Проект просторного двухэтажного жилого дома с подвалом и чердаком

Проект просторного двухэтажного жилого дома с подвалом и чердаком

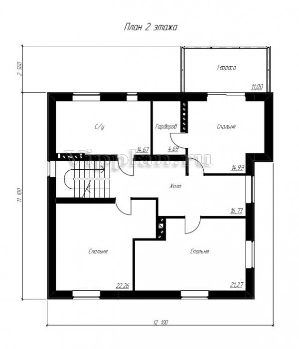
План второго этажа


Холл — 16,73 м2
С/у — 14,67 м2
Гардероб — 4,69 м2
Спальня — 14,99 м2
Спальня — 21,27 м2
Спальня — 22,26 м2
Проект просторного двухэтажного жилого дома с подвалом и чердаком Проект просторного двухэтажного жилого дома с подвалом и чердаком Проект просторного двухэтажного жилого дома с подвалом и чердаком Проект просторного двухэтажного жилого дома с подвалом и чердаком

Модификации проектов

Внесение изменений и привязка к участку строительства

В любой из проектов от компании VIPplan - Ессентуки по вашему желанию могут быть внесены изменения в материалы стен, материалы наружной отделки дома, а также будет произведена адаптация проекта под конкретный регион строительства (с учетом грунтов региона, геологических особенностей вашего участка и местных климатических условий) - БЕСПЛАТНО !!! (кроме проектов со скидкой и проектов наших партнеров).

Любой из проектов, размещенных на сайте essentuki.vipplan.ru мы можем выполнить из требуемых вам строительных материалов: ячеистый бетон (газобетон, пеноблок), керамоблок, кирпич, шлакоблок, бетонный блок, дерево (брус, клееный брус), каркасная технология (деревянный каркас, металлокаркас (ЛСТК)).

Фасад дома и его наружную отделку так же возможно выполнить с применением различных облицовочных материалов: структурной штукатурки, (с утеплителем и без), сайдингом (пластиковый или металлосайдинг), фиброплитами, кирпича.

 
6 Избранные
проекты

Доставка проектов по России: Москва (Московская область), Санкт-Петербург (Ленинградская область), Краснодар, Ростов-на-Дону, Ставрополь, Сочи, Волгоград, Новосибирск, Белгород, Брянск, Воронеж, Саратов, Хабаровск, Астрахань, Нальчик, Владикавказ, Екатеринбург, Тюмень, Самара, Нижний Новгород, Казань, Пермь, Уфа, Челябинск, Красноярск, Ханты-Мансийск, Иркутск, Курган, Оренбург, Омск, Томск, Барнаул, Новокузнецк, Кемерово, Абакан, Чита, Якутск, Южно-Сахалинск, Петропавловск-Камчатский и страны ближнего зарубежья: Белоруссия, Украина, Казахстан